Комплект инсталляции GROHE Solido 38811KF0 с унитазом Aqueduto CONE CONT2140 и раковиной Aqueduto ESPIRAL ESP0440 (NW0644)
Код товара: NW0644100% оригинал
Описание

Комплект инсталляции
GROHE Solido
(Rapid SL) с унитазом и раковиной
В комплект входят:
раковина Aqueduto ESPIRAL, черный матовый (ESP0440),
унитаз Aqueduto CONE Tornado, черный матовый (CONT2140),
инсталляция GROHE Solido для подвесного унитаза (38528001),
панель смыва GROHE Even, фантомный черный (38966KF0),
универсальный монтажный уголок (2 шт.) (3855800M),
звукоизоляционный комплект (37131000).

Обзор подвесного унитаза Aqueduto CONE Tornado с сиденьем, черный матовый (CONT2140)
- Размер 360x335x525 мм
- Безободковая чаша
- Антигрязевое покрытие
- Сиденье с микролифтом
- Устойчивость к царапинам
- Подвесной тип позволяет сэкономить место и облегчить уборку пола
- Тип смыва Торнадо (воронка-водоворот)
- Сантехнический фарфор

Обзор накладной раковины Aqueduto ESPIRAL, черный матовый (ESP0440)
- Размер 500x370x135 мм
- Сантехнический фарфор
- Антигрязевое покрытие
- Без отверстий под смеситель
- Без перелива
- Тип установки: накладная

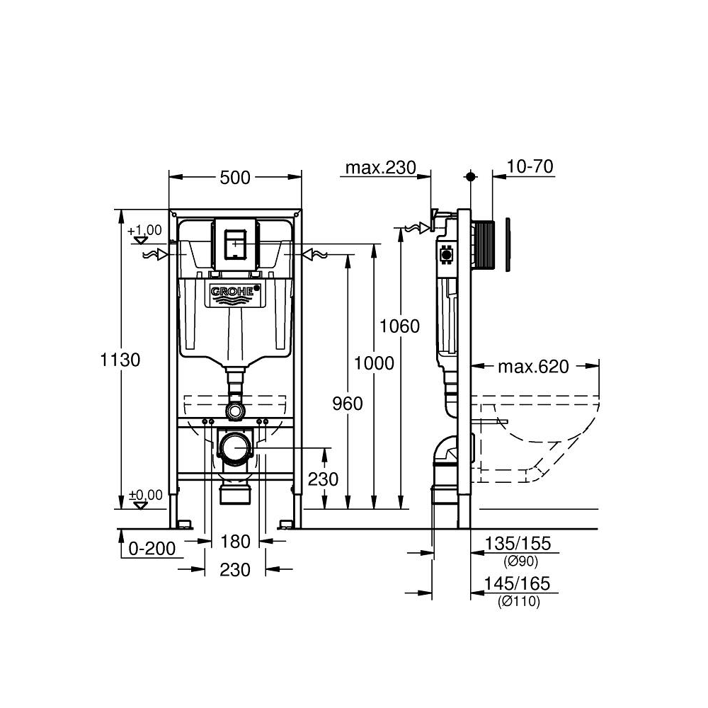
Обзор инсталляции GROHE Rapid SL для подвесного унитаза со смывным бачком GD 2 на 9 л (38528001)
- Для настенного монтажа или стен с каркасом
- Стальная рама с порошковым покрытием, самонесущая
- Сливной бачок на 6-9 л, содержащий следующие характеристики:
подача воды слева/справа или сзади;
изоляция от конденсата;
подключение к водопроводу ½", включая встроенный угловой клапан и гибкое соединение для шланга с нажимной посадкой - Быстрая регулировка по высоте 113-133 см
- Расстояние между крепежными болтами 180/230 мм
- Одобрено TÜV
- 2 крепежных болта для унитаза + крепежное устройство для керамики
- Выходной патрубок для унитаза Ø 90 мм
- Регулировка глубины монтажа
- Редуктор Ø 90/110 мм
- Комплект для подключения впуска и выпуска

Обзор панели смыва для унитаза GROHE Even, фантомный черный (38966KF0)
- Стандартный размер 156 x 197 x 10 мм
- Система двойного смыва позволяет выбрать объем смыва 3 или 6 литров, а также можно остановить полный смыв с помощью маленькой кнопки
- Установка не требует никаких инструментов, понадобится только стандартный ревизионный вал
- Вы можете выбрать вертикальный или горизонтальный монтаж

Обзор звукоизоляционного комплекта для систем инсталляции GROHE Rapid SL (37131000)
- Для установки в системы инсталляций подвесных унитазов
- Состоит из шумоизоляционной панели с монтажными отверстиями и 2 резиновых втулок с прокладками
- Уменьшает звук потока воды при смыве в системе инсталляции

Обзор универсальных монтажных уголков для GROHE Rapid SL (2 шт.) (3855800M)
- Для крепления элементов к капитальной стене или перед стеной-перегородкой
- Бесступенчатая регулировка глубины от 130 - 230 мм
- Облицовка для одиночного или рельсового монтажа
Характеристики
Технические характеристики
Монтажная высота
1130 мм
Монтажная ширина
500 мм
Объем смыва
3/6 л
Панель смыва в комплекте
да
Подвод воды
сзади бачка, слева/справа бачка
Параметры унитаза
Тип монтажа унитаза
подвесной
Направление выпуска
горизонтальное (в стену)
Тип чаши
безободковая
Тип смыва
торнадо
Форма унитаза
овальная
Цвет
черный матовый
Материал
сантехнический фарфор
Отзывы покупателей
Вопросы и ответы
По этому товару ещё не задавали вопросов.


















































































































































































.jpg)





















































































































Загружается...